Skip to main content

Spring Hall

Designed for first- and second-year students, Saint Louis University's Spring Hall features single and double suite-style rooms. It also has classrooms, a conference room, study rooms, floor lounges, a "living room" with kitchen and a large meeting space.

View a video tour of Spring Hall, including options for arranging your room.

About Spring Hall

Address: 11 North Spring Avenue, St. Louis, MO 63108
Front Desk: 314-977-6698
Amenities: Classrooms, a conference room, study rooms, floor lounges, a "living room" with kitchen, a large meeting space
Additional special features: Chapel and outdoor amphitheater
Room types: Single and double rooms; suite-style
Bathrooms: Semi-private. Residents of the suites share a bathroom.
Dining: Students can stroll down to Grand Dining Hall for meals or choose to dine at the Billiken’s Lair located in Fusz Hall. 
Parking: Rockhurst and Gonzaga parking lots, Laclede Garage
Population: Up to 454 first- and second-year students on eight floors. Single-gender suites on mixed-gender floors.
Visiting Restrictions: Students living in any University-managed residence halls or apartments may check in guests at the front desk between the hours of 7 a.m. and 2 a.m., Sunday through Thursday or 7 a.m. to 4 a.m., Friday and Saturday. Guests must be checked in and escorted by their host at all times.
Special Hours: Spring Hall remains open over Thanksgiving, winter and spring breaks.
Trivia: Spring Hall is built to LEED silver standards. The building was constructed with at least 20 percent recycled and 20 percent regional materials. The position of the building maximizes sun exposure for daylight harvesting.

Flip through a photo slideshow of Spring Hall.

Floor Plans and 360° Views

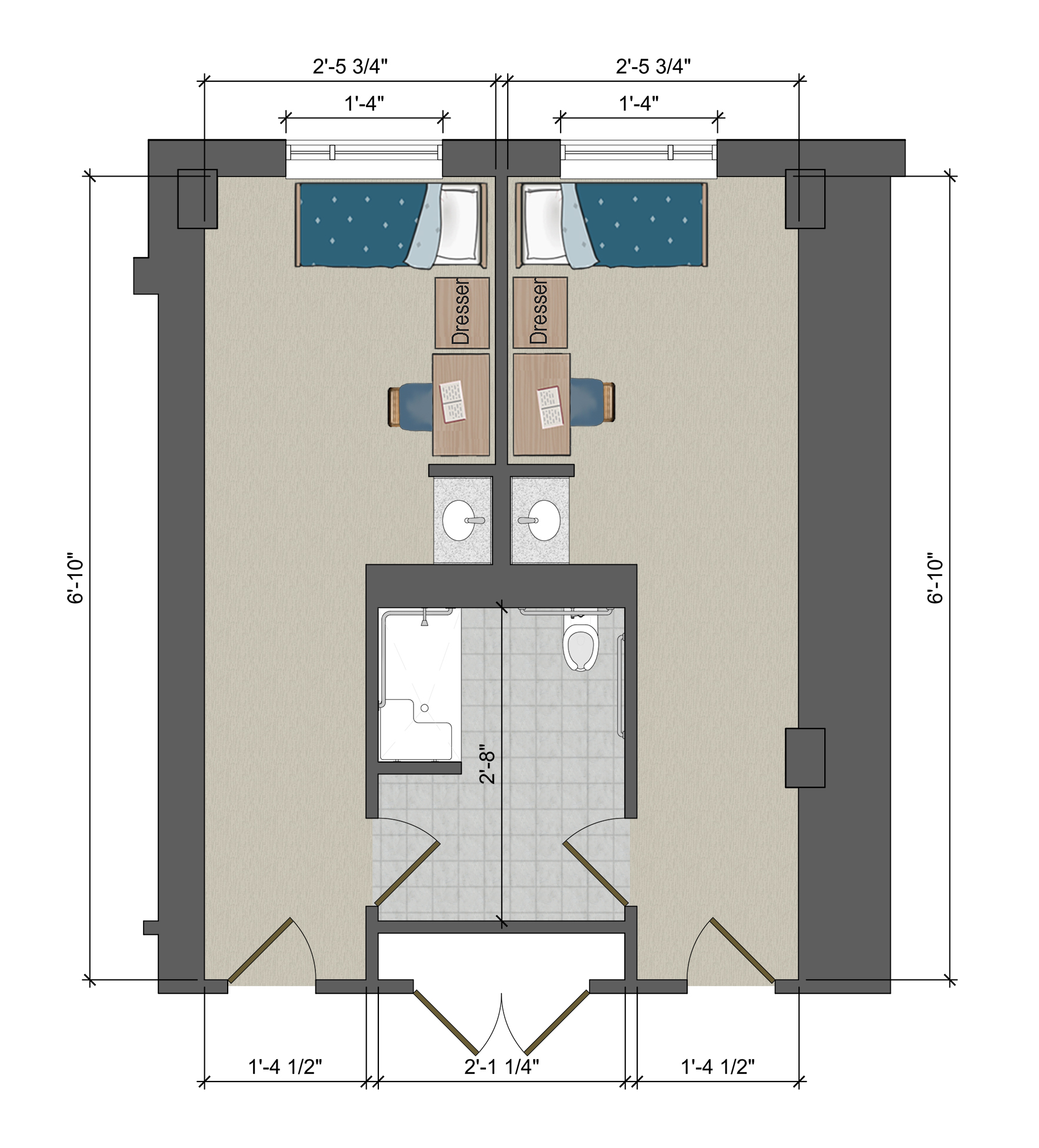
Single Semi-Suite (2 person)
Spring Hall Single Semi-Suite Floor Plan
 

Room Includes:

Bed: 38"W x 86"L
Dresser: 36"W x 24"L x 30"H
Closet: 38"W x 24"L
Desk: 42"W x 24"L x 30"H
Chair: 18"W x 18"L x 32"H

Printable Version

360° View

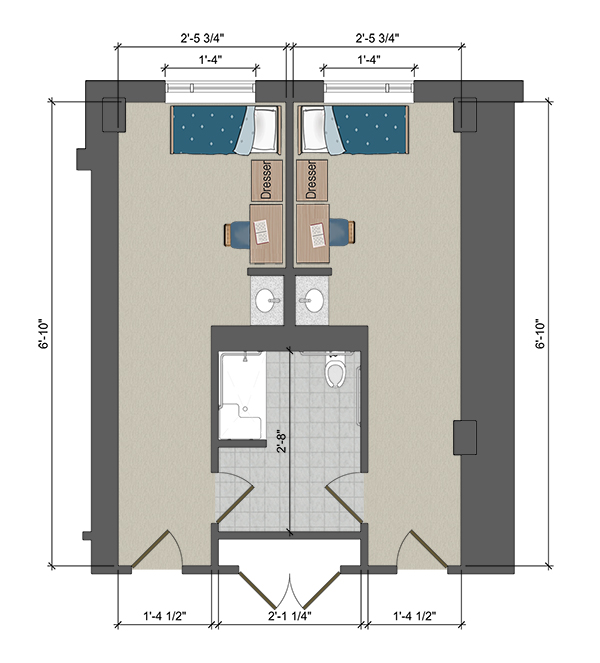
Double Semi-Suite (4 person)
Spring Hall Double Semi-Suite Floor Plan
 

Room Includes:

Bed: 38"W x 86"L
Dresser: 36"W x 24"L x 30"H
Closet: 38"W x 24"L
Desk: 42"W x 24"L x 30"H
Chair: 18"W x 18"L x 32"H

Printable Version

 

360° View

ADA-Certified Single Semi-Suite (2 person)
ADA Single Semi-Suite (2 person)
 

Room Includes:

Bed: 38"W x 86"L
Dresser: 36"W x 24"L x 30"H
Closet: 38"W x 24"L
Desk: 42"W x 24"L x 30"H
Chair: 18"W x 18"L x 32"H

Printable Version

Sign Up for SLU Housing